Órgão demandante: COORDENAÇÃO REGIONAL NORDESTE I
Local de Execução: Unidade Técnica Local de Porto da Folha
Logradouro: Aldeia Ilha de São Pedro
Número:
Complemento:
Bairro: Terra Indígena Caiçara
Cidade: Porto da Folha
Estado: SE
Ponto de referência: Terra Indígena Caiçara
Descrição do serviço solicitado
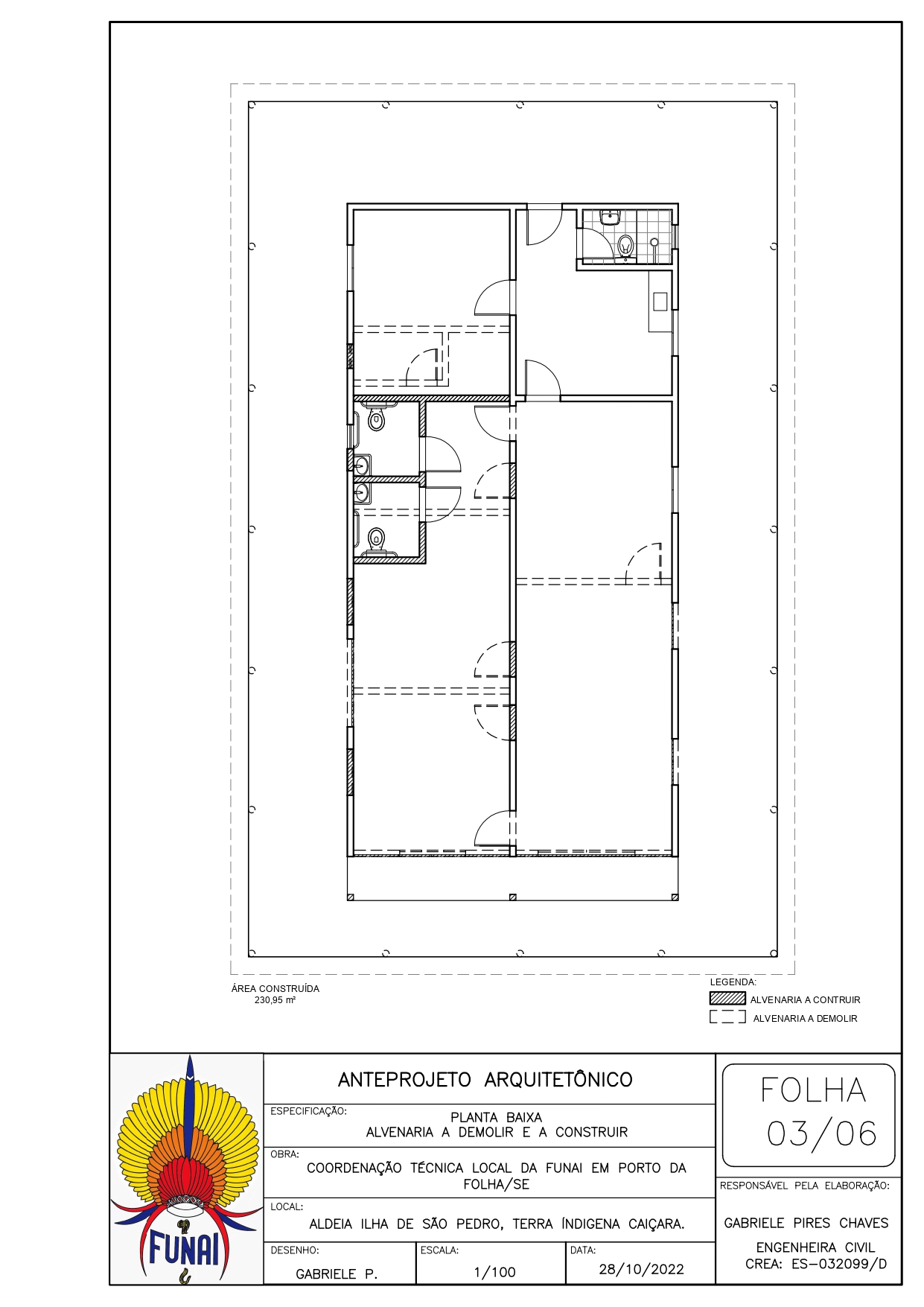
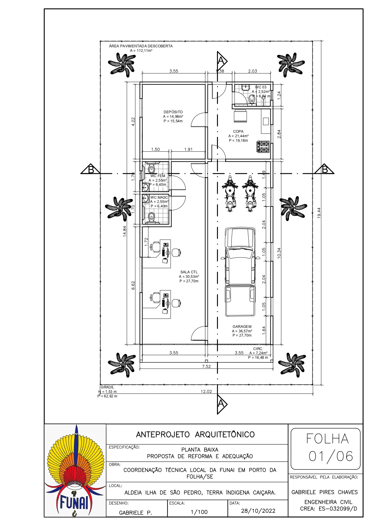
Realizar instalação de sistema hidráulico, inclusos todos os custos operacionais (material e mão de obra), encargos previdenciários, trabalhistas, tributários, comerciais e quaisquer outros que incidam direta ou indiretamente na prestação dos serviços. 1. REMOÇÃO DE METAIS SANITÁRIOS und 6 2. REMOÇÃO DE TUBULAÇÕES (TUBOS E CONEXÕES) DE ÁGUA FRIA m 30 3. INSTALAÇÃO DE CAIXA D´ÁGUA EM POLIETILENO, 500 LITROS und 1 4. INSTALAÇÃO DE TUBO PVC, DN 100 MM, FORNECIDO E INSTALADO EM RAMAL DE DESCARGA OU ESGOTO m 20 5. INSTALAÇÃO DE TUBO PVC, DN 50 MM, FORNECIDO E INSTALADO EM RAMAL DE DESCARGA OU ESGOTO m 5 6. INSTALAÇÃO DE TUBO PVC, DN 40 MM, FORNECIDO E INSTALADO EM RAMAL DE DESCARGA OU ESGOTO m 4 7. INSTALAÇÃO DE VASO SANITÁRIO SIFONADO COM CAIXA ACOPLADA LOUÇA BRANCA und 3 8. INSTALAÇÃO DE LAVATÓRIO LOUÇA BRANCA COM COLUNA, 45 X 55CM OU EQUIVALENTE und 3 9. INSTALAÇÃO DE KIT DE ACESSORIOS PARA BANHEIRO EM METAL CROMADO, 5 PECAS und 3 Caso as informações contidas no projeto de reforma e adequação, em anexo, não sejam suficientes, a avaliação prévia do local de execução dos serviços é imprescindível para o conhecimento pleno das condições e peculiaridades do objeto a ser contratado, sendo assegurado ao interessado o direito de realização de vistoria prévia, acompanhado por servidor designado para esse fim, de segunda à sexta-feira, das 08:30 horas às 17:30 horas, devendo o agendamento ser efetuado previamente pelo e-mail: sead.crnordeste1@funai.gov.br ou telefone (whatsapp): (82) 99652-8802 – Josinaldo.
Outras informações
Forma de pagamento: EMPENHO
Prazo de pagamento: 10 dias após a emissão da nota fiscal
Apenas MEI: Sim
Data limite de execução: 31 de Dezembro de 2025
Anexos do serviço a ser executado





Dúvidas de profissionais 'Anonimo'
Pergunta: Quanto a remoção e destição dos entulho e reziduos gerados durante toda a obra fica a cargo de quem?
Resposta: Todos os custos operacionais (material e mão de obra), encargos previdenciários, trabalhistas, tributários, comerciais e quaisquer outros que incidam direta ou indiretamente na prestação dos serviços ficarão a cargo do contratado.
Pergunta: Bom dia,a tubulação de água fria sera reaproveitada na obra?
Resposta: Os materiais hidráulicos serão substituídos e não serão reaproveitados.
Pergunta: bom dia ,(vasos/lavatorios/acessorio para banheiro/caixa de água 500l,posso orçar junto,ou esses nao entrarao no orçamemto finasl).
Resposta: Deverão constar no orçamento todos os custos operacionais (material e mão de obra), encargos previdenciários, trabalhistas, tributários, comerciais e quaisquer outros que incidam direta ou indiretamente na prestação dos serviços.
Pergunta: Boa noite. Quero tirar uma dúvida, na descrição o prestador contratado vai fornecer todo material citado e executar o serviço, nesse caso teria uma liberação de 50% do tomador? Como sou Mei teria que fazer uma visita técnica para especificar um levantamento preciso do material ... daí vericar o valor se teria como comprar caso não seja liberado uma porcentagem para iniciar o serviço.
Resposta: O pagamento será realizado integralmente ao final do serviço, não sendo possível qualquer adiantamento. O agendamento deverá ser efetuado previamente pelo telefone (whatsapp): (82) 99652-8802 – Josinaldo.