Órgão demandante: COORDENAÇÃO REGIONAL NORDESTE I
Local de Execução: Unidade Técnica Local de Porto da Folha
Logradouro: Aldeia Ilha de São Pedro
Número:
Complemento:
Bairro: Terra Indígena Caiçara
Cidade: Porto da Folha
Estado: SE
Ponto de referência: Terra Indígena Caiçara
Descrição do serviço solicitado
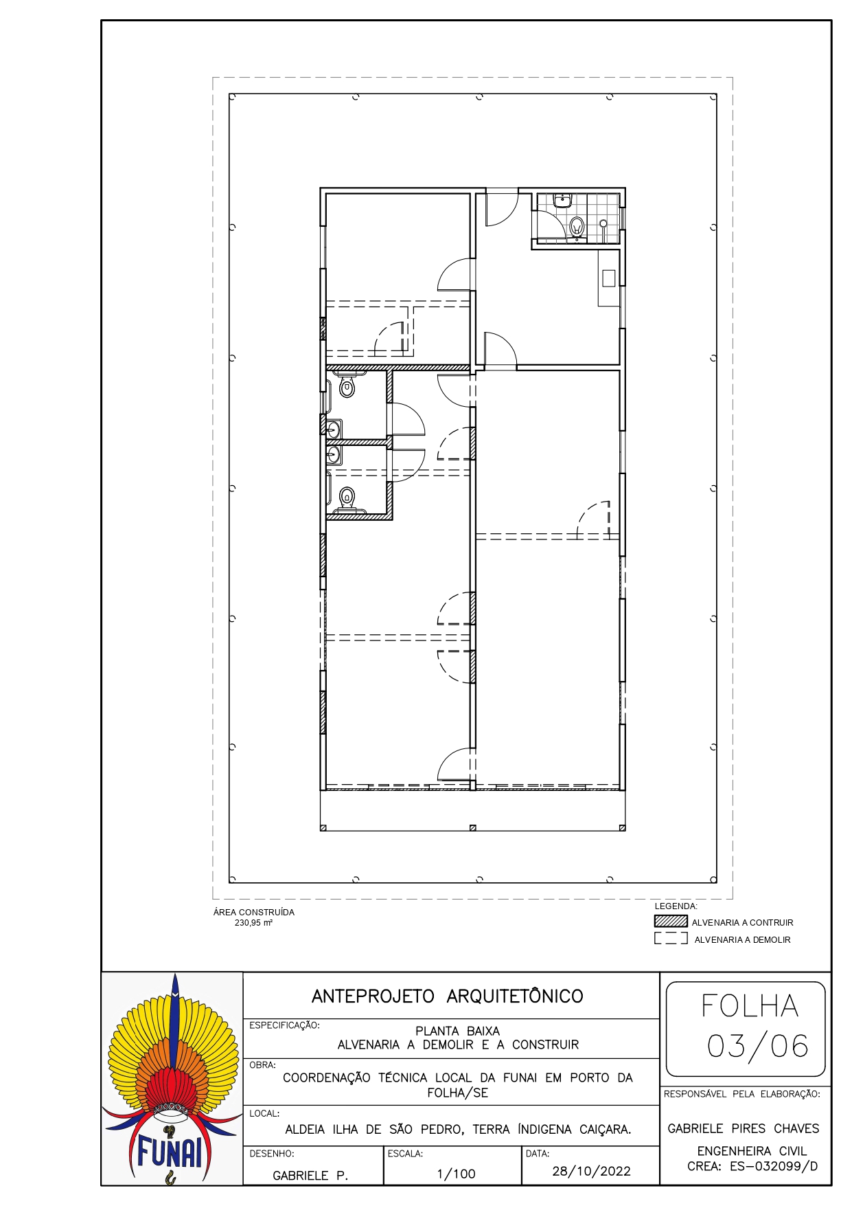
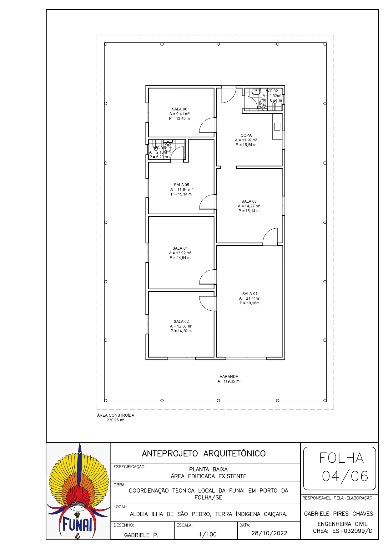
Realizar demolição e construção de estruturas de alvenaria, inclusos todos os custos operacionais (material e mão de obra), encargos previdenciários, trabalhistas, tributários, comerciais e quaisquer outros que incidam direta ou indiretamente na prestação dos serviços. 1. DEMOLIÇÃO DE PAREDE DE ALVENARIA DE BLOCO FURADO m³ 8,57 2. ALVENARIA DE VEDAÇÃO DE BLOCOS CERÂMICOS FURADOS m² 93,79 3. REVESTIMENTO CERÂMICO (BANHEIROS) m² 75,78 4. PISO CIMENTADO, TRAÇO 1:3 (CIMENTO E AREIA), ACABAMENTO RÚSTICO m² 20 5. REMOÇÃO E FIXAÇÃO DE PORTAS INTERNAS und 3 Caso as informações contidas no projeto de reforma e adequação, em anexo, não sejam suficientes, a avaliação prévia do local de execução dos serviços é imprescindível para o conhecimento pleno das condições e peculiaridades do objeto a ser contratado, sendo assegurado ao interessado o direito de realização de vistoria prévia, acompanhado por servidor designado para esse fim, de segunda à sexta-feira, das 08:30 horas às 17:30 horas, devendo o agendamento ser efetuado previamente pelo e-mail: sead.crnordeste1@funai.gov.br ou telefone (whatsapp): (82) 99652-8802 – Josinaldo.
Outras informações
Forma de pagamento: EMPENHO
Prazo de pagamento: 10 dias após a emissão da nota fiscal
Apenas MEI: Sim
Data limite de execução: 31 de Dezembro de 2025
Anexos do serviço a ser executado





Dúvidas de profissionais 'Anonimo'
Pergunta: Minha duvida seria referente aos entulhos,fica a cargo de quem quanto a retirada e destinação
Resposta: Todos os custos operacionais (material e mão de obra), encargos previdenciários, trabalhistas, tributários, comerciais e quaisquer outros que incidam direta ou indiretamente na prestação dos serviços ficarão a cargo da contratada.